Коттедж под Ключ проект с чертежами фасадов и планами
Тел: +7 921 778 94 92

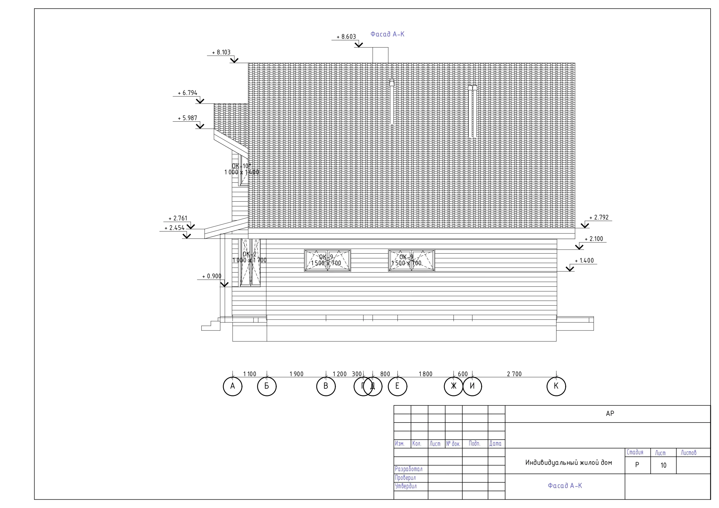
Проект одноквартирного жилого дома для постоянного проживания.


проект жилого дома 196 м2 проект жилого дома 196 м2 проект жилого дома 196 м2 проект жилого дома 196 м2 проект жилого дома 196 м2 проект жилого дома 196 м2 проект жилого дома 196 м2 проект жилого дома 196 м2 проект жилого дома 196 м2 проект жилого дома 196 м2 проект жилого дома 196 м2 проект жилого дома 196 м2 проект жилого дома 196 м2 проект жилого дома 196 м2 проект жилого дома 196 м2 проект жилого дома 196 м2

Жилая площадь 87.96 м2.
Общая площадь 180.85 м2.
Площадь застройки 140.83 м2.
Площадь уличных пом. 9.27 м2.
Площадь кровли 196.79 м2.
* СП 118.13330.2012* (Приложение Г).

Примечание: Рабочая документация выполнена в соответствии с действующими нормами и правилами, и предусматривает мероприятия, обеспечивающие пожарную безопасность при эксплуатации здания при соблюдении их заказчиком и исполнителем.

Полные чертежи с размерами фундаменты, кровли, стен наружных, перегородок внутренних, схема разрезов по осям фасада с разных сторон, проект жилого одноквартирного дома в формате ПДФ/PDF, можете бесплатно скачать (скопировать) с нашего сайта для примера. Можете построить своими руками такой дом или обращайтесь к нам.

По этому архитектурному проекту построим Вам жилой дом согласно данной планировки из пенобетона/газобетона/пеноблоков, клееного или профилированного бруса, каркасный, из кирпича, из монолитного бетона (теплая опалубка) или сип панелей. Строим со всеми инженерными коммуникациями (септик, скважина, отопление, электрика, сантехника, водоснабжение и водоочистка).

Строительство дома по данному проекту с отделкой под ключ, мы сделаем за 8 - 12 месяцев (весна - осень строительство и отделку зимой). Фото похожего по размерам с отделкой внутренней, уже построенного в 2023 году нашей строительной компанией каркасного дома 160 м2, на фундаменте из буронабивных свай.



Стоимость индивидуального проектирования жилого дома - от 350 рублей за м2 общей площади.

При строительстве дома с нашей компанией - проектирование и дизайн разработаем бесплатно.



Закажите строительство коттеджа в нашей строительной компании по выгодной цене. Экономия до 25% на строительных материалах. Индивидуальные проекты. Без всяких переплат. Звоните +7 (921)-778-94-92.

Скидка на строительство.

При онлайн заказе скидка от 10 % на строительство дома под ключ.

ПОЛУЧИТЬ СКИДКУ!